Einfamilienhaus

mit Garage und Wintergarten

Neubau eines Einfamilienhauses mit Garage und Wintergarten

Grundfläche Haus: 218 m², Grundfläche Garage: 63 m²

Leistungspaket: Eingabeplanung, Entwässerungsplan, Brandschutznachweis

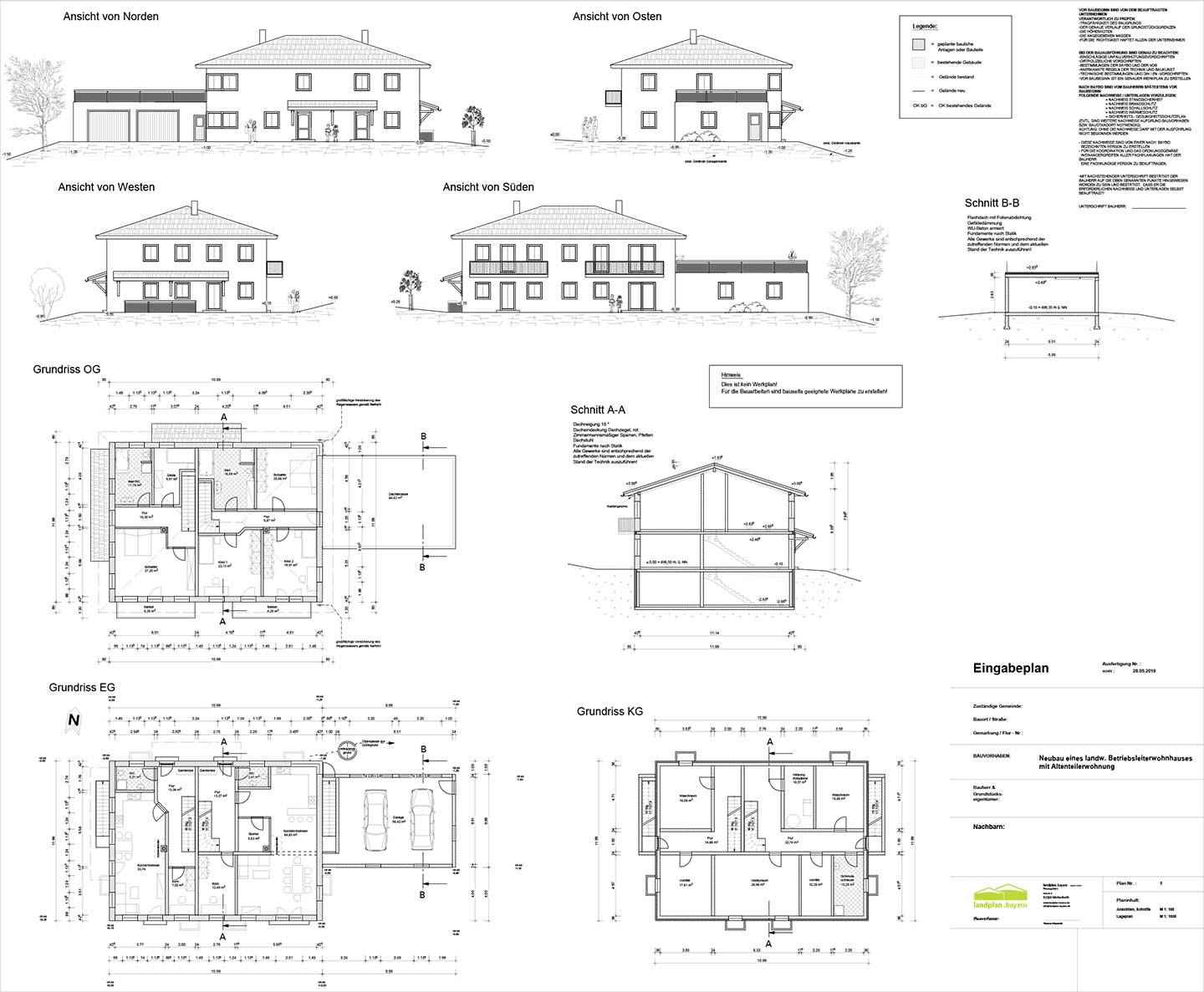
Betriebsleiterwohnhaus

Betriebsleiterwohnhaus

mit Garage und Schulungraum

Neubau eines Wohnhauses mit Garage und Schulungsraum

Grundfläche Wohnhaus: 208 m²; Grundfläche Garage: 83 m²

Dacheindeckung mit Dachziegeln

Leistungspaket: Eingabeplanung, Brandschutznachweis

Vierseithof

Brandschutztechnische Ertüchtigung

eines Vierseithofs

Brandschutztechnische Ertüchtigung eines Vierseithofs mit Zusammenfassung und Genehmigung aktueller Nutzungen

Leistungspaket: Eingabeplanung, Brandschutznachweis

Mehrfamilienhaus

Mehrfamilienhaus

mit fünf Wohneinheiten

Abbruch des bestehenden Wohngebäudes und Neubau eines Mehrfamilienhauses mit fünf Wohneinheiten, wovon eine Wohneinheit barrierefrei gestaltet wurde

Grundfläche: 241 m²

Leistungspaket: Eingabeplanung, Brandschutznachweis

Nach oben scrollen