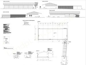
landplan-bayern_halle_planung_bau_plan_2015-082 Kommentar verfassen / Von thomaskoepernik / 3. April 2019